Graphisoft Building Systems Gmbh

Effiziente Elektroplanung auf allen Ebenen

Veröffentlicht: 11. November 2022 Kategorie: News

Frankfurt am Main, 04. Oktober 2022 – Ein breites Spektrum an neuen Funktionen und Weiterentwicklungen für die Elektroinstallationsplanung und die Verteilerdokumentation mit DDScad 18 stellte Graphisoft Building Systems (ehemals Data Design System) auf der Light + Building vor.

Effiziente Elektroplanung auf allen Ebenen

Die vielfältigen Funktionsneuheiten sorgen für mehr Flexibilität und Planungskomfort sowie noch effizientere und schnellere Prozesse. Sie erstrecken sich von der Konfiguration und Verlegung von Leitungen über die Auslegung von Kabelbahnen bis hin zur Konfiguration von Schemata. Auf diese Weise werden mit der Softwareversion 18 die Abläufe bei der digitalen Elektroplanung an mehreren Stellen deutlich optimiert.

Leitungsplanung mit DDScad 18: individuell und schnell

So ist es ab sofort möglich, neue Leitungstypen bedarfsgerecht selbst anzulegen. Dies geschieht nicht über einen separaten Dialog, sondern direkt im Eigenschaftenfenster der Software. Hier können unter anderem die passende Verlegart, Mehr- oder Einzelader oder das gewünschte Material gewählt werden. Nach Abschluss der Konfiguration reihen sich die neu erstellten Leitungsvarianten automatisch in die Liste der bereits verfügbaren Leitungsmodelle ein und werden von der Software bei allen weiteren Arbeitsschritten berücksichtigt, z. B. beim Erstellen von Stücklisten.

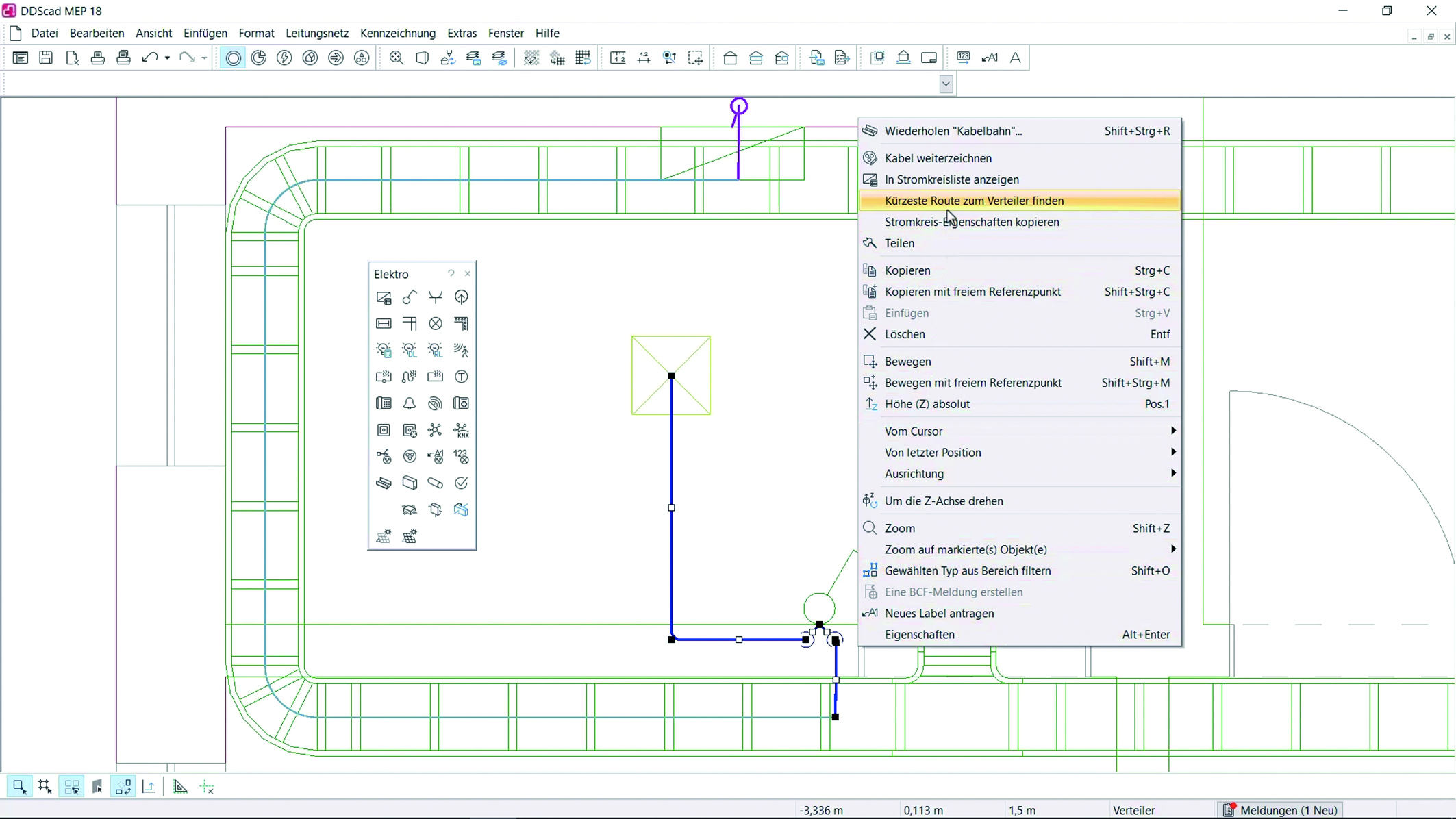
Auch für die Planung von Kabelwegen im Gebäude hält DDScad 18 neue Optionen bereit, welche die tägliche Arbeit erheblich erleichtern. Kommt etwa ein Verlegesystem zum Einsatz, findet die Software mit nur einem Klick die kürzeste Route über dieses und stellt selbsttätig die Verbindung zwischen Verbraucher und Verteiler her. Mit der Funktion lässt sich ebenso gezielt prüfen, ob eine gewählte Leitung auch nach Veränderungen am Verlegesystem noch den kürzesten Weg nimmt. Dies erhöht die Planungseffizienz und verringert zugleich den Materialaufwand.

Verlegesysteme flexibel modellieren und präzise auslegen

Um die Arbeit mit Verlegesystemen noch nutzerfreundlicher zu gestalten, stehen in DDScad jetzt neue Typen von Kabelbahnhaltern zur Verfügung. Um Halter anzulegen, können selbst erstellte oder auch externe Symbole verwendet werden. Darüber hinaus ist es möglich, die Kabelbahnhalter auch senkrecht an schräg auf- oder abwärts verlaufenden Teilsegmenten einzusetzen.

Nach der Modellierung der Verlegesysteme für Schwachstrom- und Energieleitungen lässt sich mit DDScad 18 deren Füllungsgrad analysieren. Auf diese Weise ermitteln die Anwender schnell und präzise, ob die entsprechende Kabelbahn, der Kabelkanal oder das Leerrohr für die geplante Nutzung bzw. für eventuell nachfolgende Erweiterungen ausreichend dimensioniert sind. Das detaillierte Berechnungsergebnis, das auch für einzelne Teilsegmente eines Verlegesystems erstellt werden kann, wird übersichtlich im Eigenschaftenfenster dargestellt. Auf dieser Basis lassen sich kritische Bereiche schnell und einfach identifizieren und die Komponenten entsprechend anpassen. Wird der vom Nutzer definierte Mindest- oder Maximalfüllungsgrad eines Verlegesystems unter- oder überschritten, gibt die Software automatisch eine Meldung aus. Für noch mehr Übersichtlichkeit sorgt ein Visualisierungsfilter, mit dem sich verschiedene Füllungsgrade im 3D-Modell farblich darstellen lassen.

Elektroschemata übersichtlicher gestalten

Wie bei den Vorgängerversionen sind auch in DDScad 18 die Installationsplanung und die Verteilerdokumentation optimal miteinander vernetzt, wodurch Änderungen in dem einen Teilbereich automatisch im anderen umgesetzt werden. Neu hinzu kommt, dass sich die Elektroschemata für die Dokumentation jetzt schnell und einfach bedarfsgerecht anordnen und gestalten lassen. Mit dem neuen Schema-Layout-Konfigurator können Anwender unter anderem bestimmen, wie viele Objekte pro Reihe oder welche Textinformationen dargestellt werden sollen. Eine Vorschaufunktion zeigt die geplanten
Änderungen an, bevor sie übernommen werden. Zudem können die neuen Einstellungen für Elektroschemata als Vorlage gespeichert und so für neue Projekte verwendet werden.


content gallery 1
content gallery 1